Дом, 105,6 м², 1 эт.

Московская область, СПК Простор, 311

11 500 000 руб.

108 902 руб./м²

Описание Объект №511

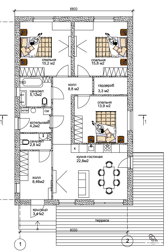
Дом 105,6 кв.м. для ПМЖ на участке 4,5 соток вблизи пос. Новый Городок го Щелково Щелковское шоссе 15 км от МКАД в СПК Простор д. 302. Год постройки 2025. Дом одноэтажный из газосиликатных блоков Bonolit D500 толщиной 400 мм. Залит армопояс. Фундамент армированная бетонная подушка 200 мм с утеплением пеноплексом 50 мм. Размер дома по фундаменту 13,2х8,8 метра. Крыша из мягкой черепицы. Утепление крыши 200 мм. Пластиковые двухкамерные стеклопакеты производство Rehau. Добротная входная металлическая дверь. Утепленная отмостка. Установлена водосточная система и снегозадержатели. Планировка: просторная кухня-гостиная 22,8 кв.м., холл, три жилые комнаты 15,22; 15,8 и 13,9 кв.м., два с/у, котельная, гардероб, тамбур, терраса. Дом отстоялся. Можно начинать отделочные работы. Электричество 15 кВт, скважина, магистральный газ перед участком. Место для парковки выложено брусчаткой. Участок 4,5 сотки по периметру огорожен забором из профлиста. Откатные ворота с электромотором и автоматикой. Подъезд к участку круглогодичный по дороге из асфальтированной крошки. СПК по периметру огорожено. Установлено видеонаблюдение. На въезде в СПК управляемые ворота. Вся необходимая инфраструктура: школа, детские сады, поликлиника, сетевые магазины, салон красоты, Сбербанк, ДК, стадион, кружки в пешей доступности. Остановка автобусов на Москву в пос. Новый Городок. Недалеко заповедник Лосиный Остров, каскад Медвежьих озер. Один собственник. Свободная продажа.

  • Площадь участка :

  • Тип :

  • Площадь :

  • Этажность :

  • Водопровод :

  • Отопление :

  • 4,5 сот.

  • Дом

  • 105,6 м²

  • 1

  • Скважина

  • Нет

  • Тип участка :

  • Материал дома :

  • Ремонт :

  • Кол-во комнат :

  • Газ :

  • Ведение садоводства

  • Газосиликатный блок

  • Требует ремонта

  • 3

  • Есть возможность

Карта СПК Простор, 311

Похожая недвижимость

Дом, 104 м², 1 эт.
  • Продажа
12 500 000 руб.

Дом

Дом, 104 м², 1 эт.

СПК Ручеёк-2

Дом, 89,7 м², 1 эт.
  • Продажа
10 950 000 руб.

Дом

Дом, 89,7 м², 1 эт.

Щёлково, 2-я линия, 19

Дом, 169 м², 2 эт.
  • Продажа
10 700 000 руб.

Дом

Дом, 169 м², 2 эт.

СПК Рассвет, 97